AddLoadEvent(function(){function f(){$("#nav-menu img").each(function(){$(this).attr("src",$(this).data("src"))});$("#nav-menu-shadow").on("mousedown",function(){b(!1)});$("#nav-menu-shadow").on("touchmove",function(){b(!1)});$("#nav-menu-shadow").on("click",function(){b(!1)})}function b(a){null==a&&(a=!0);a?(!1===d&&(d=!0,f()),$("body").addClass("modal-open"),$("#nav-menu-shadow").css("display","block"),$("#nav-menu-content-mobi").addClass("show")):($("body").removeClass("modal-open"),$("#nav-menu-shadow").css("display", "none"),$("#nav-menu-content-mobi").removeClass("show"))}var d=!1;$("#nav-menu-mobibtn").on("click",function(){b(!0)});$("#nav-menu-brand>img").attr("src",$("#nav-menu-brand>img").data("src"))}); AddDelegate("StateChange",function(f){var b={"01":"\u53f0\u5317","02":"\u65b0\u5317","03":"\u57fa\u9686","05":"\u6843\u5712","06":"\u65b0\u7af9","07":"\u65b0\u7af9","09":"\u82d7\u6817",10:"\u53f0\u4e2d",13:"\u5f70\u5316",14:"\u96f2\u6797",16:"\u5357\u6295",17:"\u5609\u7fa9",18:"\u5609\u7fa9",19:"\u53f0\u5357",21:"\u9ad8\u96c4",24:"\u5c4f\u6771",30:"\u5b9c\u862d",28:"\u82b1\u84ee",26:"\u53f0\u6771",23:"\u6f8e\u6e56",32:"\u91d1\u9580"},d={1:"\u623f\u5c4b",4:"\u4f4f\u8fa6",7:"\u5e97\u9762",10:"\u8fa6\u516c", 13:"\u571f\u5730",16:"\u5ee0\u623f"},a=f.StateID,g=null;if(null==a||null==b[a])a="05";g=b[a];url="https://www.houseweb.com.tw/search/house/sell/";$("#nav-menu-mobi-type a").each(function(){var c=$(this),e=c.data("ca"),h=g+d[e];c.attr("href",url+a+"/"+e);c.attr("title",h)});$("#mobi-menu-object-type a").each(function(){var c=$(this),e=c.data("ca"),h=g+d[e];c.attr("href",url+a+"/"+e);c.attr("title",h)})});
住宅
住辦
店面
辦公
土地
廠房
知識新聞
達人專欄
全國業者
會員中心
我要刊登
住宅
住辦
店面
辦公
土地
廠房
全國物件
知識新聞
達人專欄
全國業者
會員中心
我要刊登
桃園房屋資訊網
桃園透天
桃園區房屋
桃園區透天
桃園市桃園區
透天
復興路整棟收租透天
最近更新:2026-04-11 11:43:18
住商不動產桃園藝文加盟店
的物件共
420
筆
意者請電
033179911
總價 :
2,880
萬
(不含車位)
物件編號:
Z1844543
聯賣流通:
歡迎
明顯目標(路名,巷弄):
復興路
面積:
建物:75.57㎡
(約22.86坪)
土地:84.9900㎡
(約25.71坪)
參考資料
主建物面積
:
75.5700 ㎡
(22.86坪)
附屬
:
車位
:
地下室
:
其它
:
陽台
:
露台
:
雨遮
:
公設面積
:
土地登記面積
:
84.9900 ㎡
(25.71坪)
附加描述
:
單價:--
門前路寬:
--  米(公尺)
建物規劃:
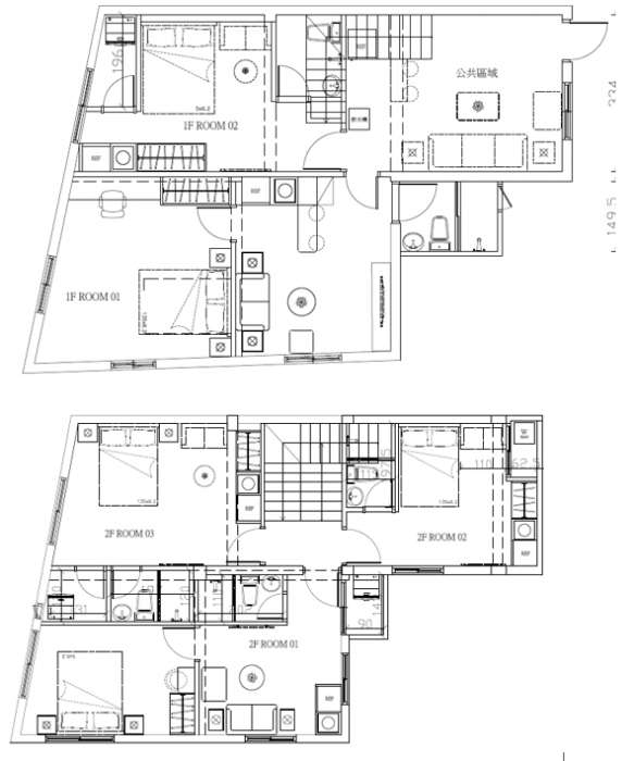
地上 2 層,地下 0 層 本物件所在樓層: 1-2
物件QR-Code
建物格局:
10 房 / -- 廳 / 10 衛 -- 陽台
建物座向:
--
屋齡:
47 年 9 月
土地格局:
面寬 -- 公尺 縱深 -- 公尺
車位形式:
無車位
其他資料
所屬商圈:
縣府特區生活圈.前站生活圈
捷運車站:
桃園捷運>綠線>G7桃園車站(未)
鄰近公園:
南門公園
鄰近學區:
南門國小,桃園國中.私立振聲高中(國中部)
超商賣場:
南門市場.全聯超市
特色介紹
近桃園火車站.未來捷運綠線G07站,
位於市府商圈.桃園站前商圈,
整棟10套房穩定滿租中.年收租百萬,
近學區.超市.南門市場生活機能佳
增建3.4樓.使用空間大
物件圖片
電子地圖
聯絡資料
聯絡電話
033179911
聯絡人:
住商不動產桃園藝文加盟店
電子信箱:
wh.kk@msa.hinet.net
即時通:
s123697@yahoo.com.tw
公司名稱:
☆住商不動產桃園藝文加盟店★兆尊不動產仲介經紀有限公司
證書字號:
經紀人(90)桃市經字0221號
Skype:
s0932099858
傳真:
033150855
服務地址:
桃園市桃園區大興西路一段128號
*
中文姓名
*
手機
*
Email
*
留言
資料送出
物件Q&A
相關物件//
相關物件//
桃園市桃園區
桃園市桃園區
大興路花園洋房別墅
透天
1,680 萬
桃園市桃園區
桃園站前民生路透天
透天
1,986 萬
相關物件//
桃園市其他地區
桃園市八德區
大湳活巷進出全新裝修透天
透天
1,180 萬
桃園市中壢區
中壢光明公園旁整新美透天
透天
2,080 萬
桃園市楊梅區
楊梅愛買旁收租七套房
透天
1,980 萬
桃園市蘆竹區
海湖甲建透天
透天
698 萬
桃園市中壢區
中央大學旁大地坪透天
透天
2,680 萬
桃園市中壢區
中壢體育園區旁透天
透天
1,398 萬
桃園市大溪區
大溪透店
透天
1,880 萬
桃園市中壢區
中壢近A21透天店面
透天
2,980 萬
桃園市中壢區
中壢A20全新裝潢美透天
透天
2,488 萬
桃園市龍潭區
龍潭804國軍醫院旁透天
透天
798 萬
桃園市八德區
八德捷運G05旁全新電梯透天A7
透天
4,980 萬
桃園市平鎮區
平鎮霄裡大池旁美透天
透天
1,280 萬